2026

Im Juni 2026 sind wir wieder in Balderschwang  in den Alpenflair  Chalets.
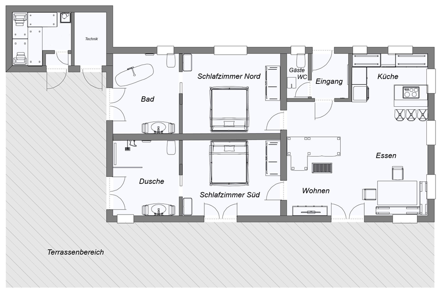
Dieses Mal im Chalet " Steig Auf "


Und DAS erwartet uns...